Фундамент: стрічковий або фундаментні блоки.
Стіни: газоблок 400 мм., утеплювач мінераловатний 100 мм.
Оздоблення стін: фасадна штукатурка та камінь травертин.
Тип даху: плоский.
Перекриття: монолітні з/б плити.
Покрівля: покриття – супердифузійна мембрана.
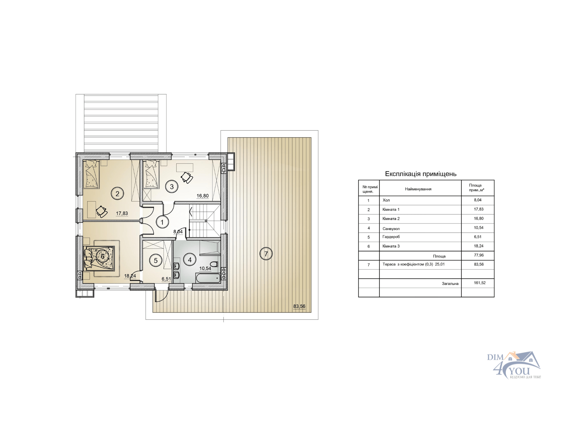
Докладніше про те, що входить у готовий проект будинку Кіра від компанії Dim4You та як придбати проект у нашому довіднику.





