Фундамент: стрічковий або фундаментні блоки.
Стіни: газоблок 400 мм., утеплювач мінераловатний 100 мм.
Оздоблення стін: фасадна штукатурка, камінь травертин.
Тип даху: двосхилий.
Перекриття: дерев’яне.
Покрівля: натуральна черепиця.
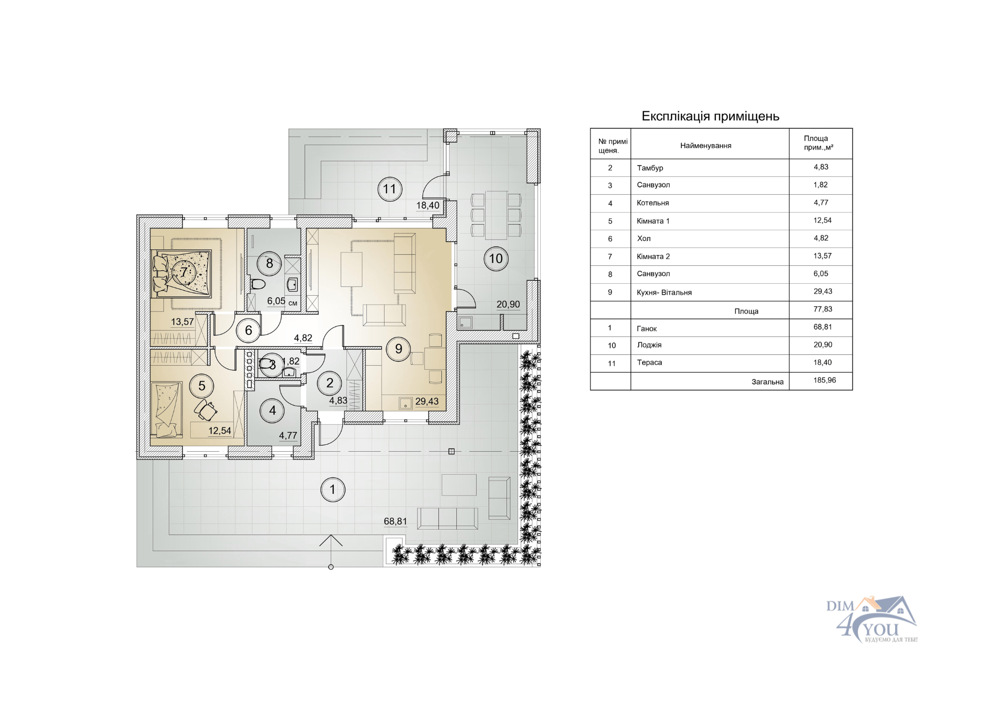
Докладніше про те, що входить у готовий проект будинку Емма від компанії Dim4You та як придбати проект у нашому довіднику.




